Das Lansersee Chalet.

Einzigartiges Wohnen am See mitten in der Natur.

Diese Erinnerung ist dafür geschaffen, zu bleiben.

Wir bieten Ihnen ein Umfeld, das inspiriert – sei es, um besondere Tage zu verbringen, sich zurückzuziehen oder Gäste zu empfangen. Jeder Aspekt des Chalets wurde bedacht konzipiert, um ein wahrhaft unvergessliches Erlebnis zu schaffen.

Die Lage.

Ein Ort, um abzuschalten, sich neu zu beleben und die atemberaubende Alpenlandschaft in privater Eleganz zu genießen.

Ein architektonisches Juwel am See in einer der begehrtesten Lagen Tirols.

Die offen gestaltete Wohnlandschaft lädt dazu ein, bei einem gemeinsamen Abendessen, einem Filmabend oder einem Kamingespräch zusammenzukommen und wertvolle Momente zu erleben.

Zimmer & Ausstattung

Erdgeschoss

Gäste-WC / Garderobe / Wohnbereich mit TV, Sofa, Kamin / Essbereich / Küche / Gartenzimmer Doppelschlafzimmer / Hauptschlafzimmer mit Doppelbett im En-suite-Badezimmer samt Badewanne und WC / zwei große überdachte Terrassen (in Grau)

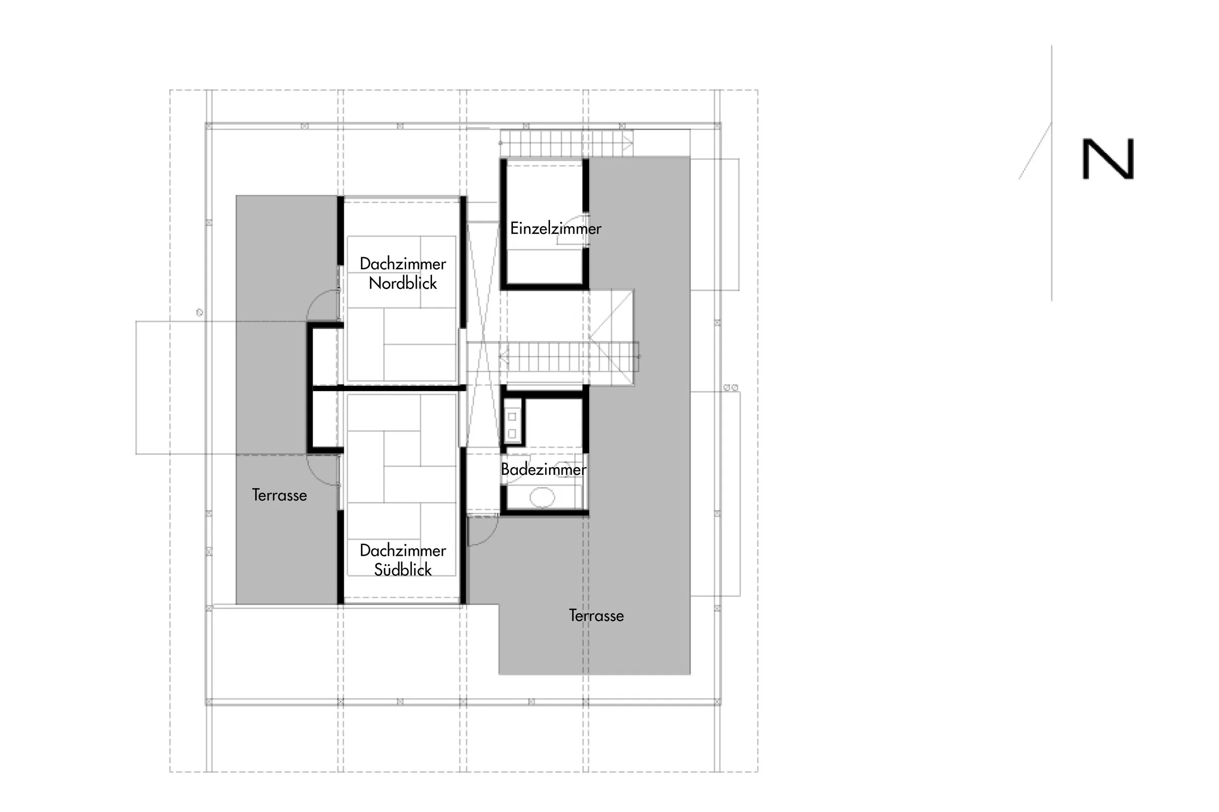
Dachgeschoss

Dachzimmer mit Südblick / Dachzimmer mit Nordblick / Bad mit WC und großer Dusche / Das Einzelzimmer ist über eine überdachte Terrasse mit dem Badezimmer verbunden. / zwei große überdachte Terrassen (in Grau)

Zusammenfassung

vier Doppelzimmer / ein kleines Einzelzimmer, das über eine überdachte Terrasse mit dem Badezimmer verbunden ist / zwei Badezimmer / eine Gästetoilette / vollausgestattete Küche

Ein privater Schlüssel zum Lansersee

Kamin mit Brennholz / 50” 4K Fernseher / Bose Smart Ultra Soundbar mit Bluetooth / englische Handtücher und hochwertige Bettwäsche / Waschmaschine und Trockner

Preise & Konditionen

  • 1 - 2 Gäste: 1500 €

    3 - 5 Gäste: 1740 €

    6 - 7 Gäste: 1840 €

    8 - 9 Gäste: 1940 €

    Bei mindestens zwei Nächten.

    Steuern und Endreinigung sind im Preis inbegriffen. Dieser Grundpreis ist nicht verbindlich und variiert an frequentierten Wochen wie Feiertagen etc. Rabatierte Wochen- und Monatspreise sind auf Anfrage möglich.

    Schreibe uns gerne für Dein personalisiertes Angebot!

  • Wir können Ihre exklusiven Events, Retreats und Teambuilding-Workshops ausrichten. Kontaktieren Sie uns für ein individuelles Angebot.

  • Gerne bieten wir Ihnen auf Anfrage auch Catering-Services aus unserem Restaurant an.

  • Während Ihres Aufenthalts können Sie die Privatstraße entlang des Anwesens nutzen. Parkplätze stehen direkt vor dem Chalet für Sie bereit.

  • Aufgrund der hochwertigen Kunst und der ausgewählten Materialien ist das Chalet für Kinder unter 15 Jahren nicht geeignet.

  • Haustiere sind nicht gestattet.

Buchen Sie direkt bei uns und sichern Sie sich die besten Preise!

Preisgekrönte Architektur.

Das Chalet ist ein japanisch inspiriertes Wohnhaus, das in eine 250 Jahre alte Tiroler Scheune hineingebaut wurde. Die Architektur vereint östliche und westliche Lebensphilosophien, umgeben von Natur. Ausblicke und Privatsphäre, Offenheit und Schutz, Alt und Neu verschmelzen hier zu einem stimmigen Erlebnis von reizvoller Spannung. Verschiedene Texturen aus Holz, Lehm und Naturstein schaffen eine behagliche Wärme. Große Fenster und verschiebbare Glaswände erweitern den offenen Grundriss in die Felder und Wälder des Lansersee-Anwesens. Die ständig wechselnden Jahreszeiten und Elemente werden so zu einem Teil des Wohnerlebnisses, das dem Charme des Chalets zu jeder Zeit des Jahres eine einzigartige Note verleiht.

Auszeichnungen

BTV Bauherrenpreis „Transformation“ 2003
Auszeichnung des Landes Tirol für Neues Bauen 2006
Auszeichnung Holzbaupreis Tirol „Revitalisierung“ 2007

Das Lansersee Anwesen

Das Chalet liegt innerhal eines 13,5 Hektar großen Anwesen, das den Lansersee – Innsbrucks Riviera – umgibt. Zum Anwesen gehören zwei Seen (der Lansersee und der Seerosenweiher), ein aktiver Bauernhof, ein öffentliches Strandbad, ein Restaurant, ein Kiosk und eine Eventlocation.

Der Lansersee ist ganzjährig ein beliebter Treffpunkt für Locals. Im Sommer verwandelt er sich in Innsbrucks charmantesten Strand. Die Koi Bar ist unser Restaurant, das eine japanisch inspirierte Küche mit Fokus auf dem Robata-Grill und Produkten aus unseren eigenen Landwirtschaft anbietet. Das Art Loft ist ein 300 m² großes Loft mit Blick auf den See, gefüllt mit Kunst in Museumsqualität. Hier veranstalten wir Events für internationale Unternehmen wie Swarovski, Patagonia, Embraer, Salewa und viele mehr.

Ein Privileg während Ihres Aufenthalts: Sie haben jederzeit Zugang zum See.

Ihr privater Schlüssel zum See.

Wir haben viel zu bieten… Genießen Sie ein Bad im Lansersee mit seinem erstklassigen Wasser, speisen Sie in der Koi Bar – unserem japanischen Grillrestaurant – oder veranstalten Sie Ihr Event im Art Loft – unserer Eventlocation.

Buchen Sie Ihren Aufenthalt.

Adresse
Am Lansersee 75a / 6072 Lans / Austria