The Lansersee Chalet.

An exclusive lakeside residence immersed in the nature of the Austrian Alps.

This memory is designed to last.

We offer you an environment that inspires - may that be to live, retreat or host guests. Each aspect of this home is put together to create a truly memorable experience.

The location.

A place to unwind, recharge and enjoy the breathtaking Alpine landscape in private elegance.

An architectural gem aside a lake in one of Tyrol's most sought-after post codes.

The open floor plan living space offers the comforting familiarity of coming together for a dinner, film or fireside chat.

rooms & ameneties

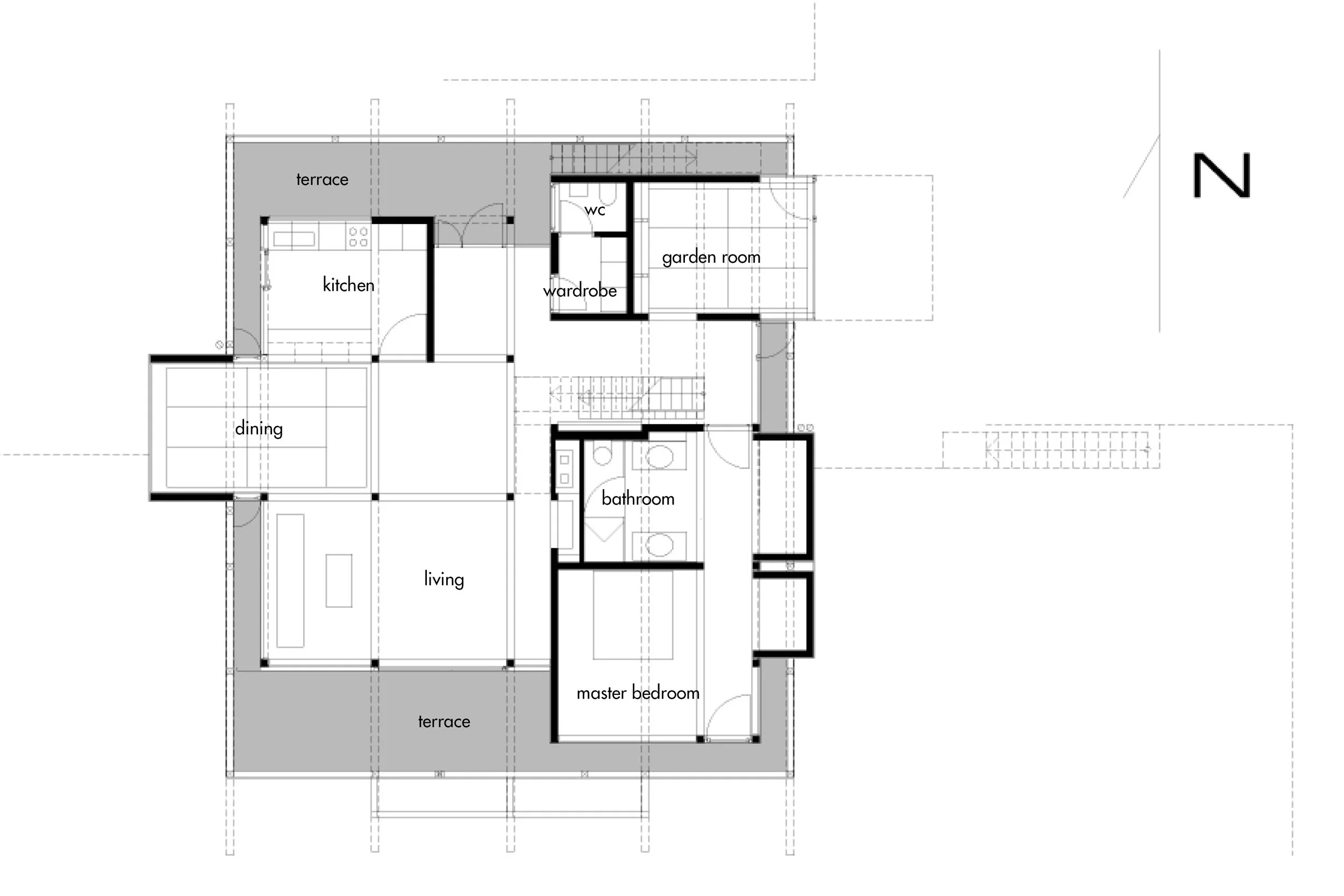
Ground Floor

guest WC / wardrobe / living space with TV, sofa, fireplace / dining area / kitchen / garden room double bedroom / master bedroom double bedroom with bathroom with tub and wc / two large covered terraces (in grey)

Top Floor

top north double bedroom / top south double bedroom / bathroom with wc and large shower / single bedroom accessable and connected to the bathroom via covered terrace / two large covered terraces (in grey)

summary

four double rooms / one small single room accessable and connected to the bathroom via covered terrace / two bathrooms /one guest toilet / fully equipped kitchen

a private key to the Lansersee lake area / beach

fireplace with firewood / 50” 4K television / Bose Smart Ultra Soundbar with Bluetooth / english towels & heavy bed linen / washing machine & dryer

pricing & conditions

  • 1 - 2 guests: €1,500

    3 - 5 guests: €1,740

    6 - 7 guests: €1,840

    8 - 9 guests: €1,940

    At a minimum of 2 nights.

    Taxes and final cleaning are included in the price. This base price is non-binding and varies during high-frequency weeks such as public holidays, etc. Discounted weekly and monthly rates possible. Please contact us for your personalized offer!

  • We can host your exclusive events, retreats and team building workshops. Please contact us for a customized offer.

  • We can cater from our restaurant upon your request.

  • During your stay you may use the private road along the estate. We offer parking right in front of the chalet.

  • Due to the high quality of the art and materiality the chalet is not suitable for children under the age of 15.

  • Pets are not allowed.

Book your stay directly with us for best prices!

Awardwinning architecture.

The chalet is a Japanese-inspired home built within a 250-year-old Tyrolean barn. The architecture negotiates between Eastern and Western philosophies of living in nature. Views and privacy, openness and shelter, old and new all come together to create a coherent experience of beautiful suspense. Multiple textures of wood, clay, and natural stone provide a comforting warmth. Large windows and sliding glass walls extend the open floor plan into the Lansersee Estate's fields and forests. The ever-changing seasons and elements are features of the living experience that make the charm of The Chalet distinctly different at each time of year.

Awards

BTV Bauherrenpreis „Transformation“ 2003
Auszeichnung des Landes Tirol für Neues Bauen 2006
Auszeichnung Holzbaupreis Tirol „Revitalisierung“ 2007

The Lansersee Estate

The Chalet is nestled in a 13.5 hectar estate surrounding the Lansersee - an alpine lake known to be Innsbruck´s Riviera. It incorporates two lakes (Lansersee, Seerosenweiher) an active farm, a public bath, two restaurants and an event space.

The Lansersee is where locals meet all year round. In summer it is Innsbruck’s classy beach. The Koi Bar is our restaurant serving a Japanese-inspired menu focussing on the robata grill and produce from our fields. The Art Loft is a 300m2 loft space overlooking the lake filled with museum quality art. Here we host events for international companies like Swarovski, Patagonia, Embraer, Salewa…

Your private key to the Lansersee.

A priviledge during your stay: Access our lake whenever you please.

We have a lot on offer… Enjoy a swim in the Lansersee with its top quality water, dine in Koi Bar - our Japanese grill restaurant or host events in the Art Loft - our event space with museum quality art.

Book your stay

address
Am Lansersee 75a / 6072 Lans / Austria